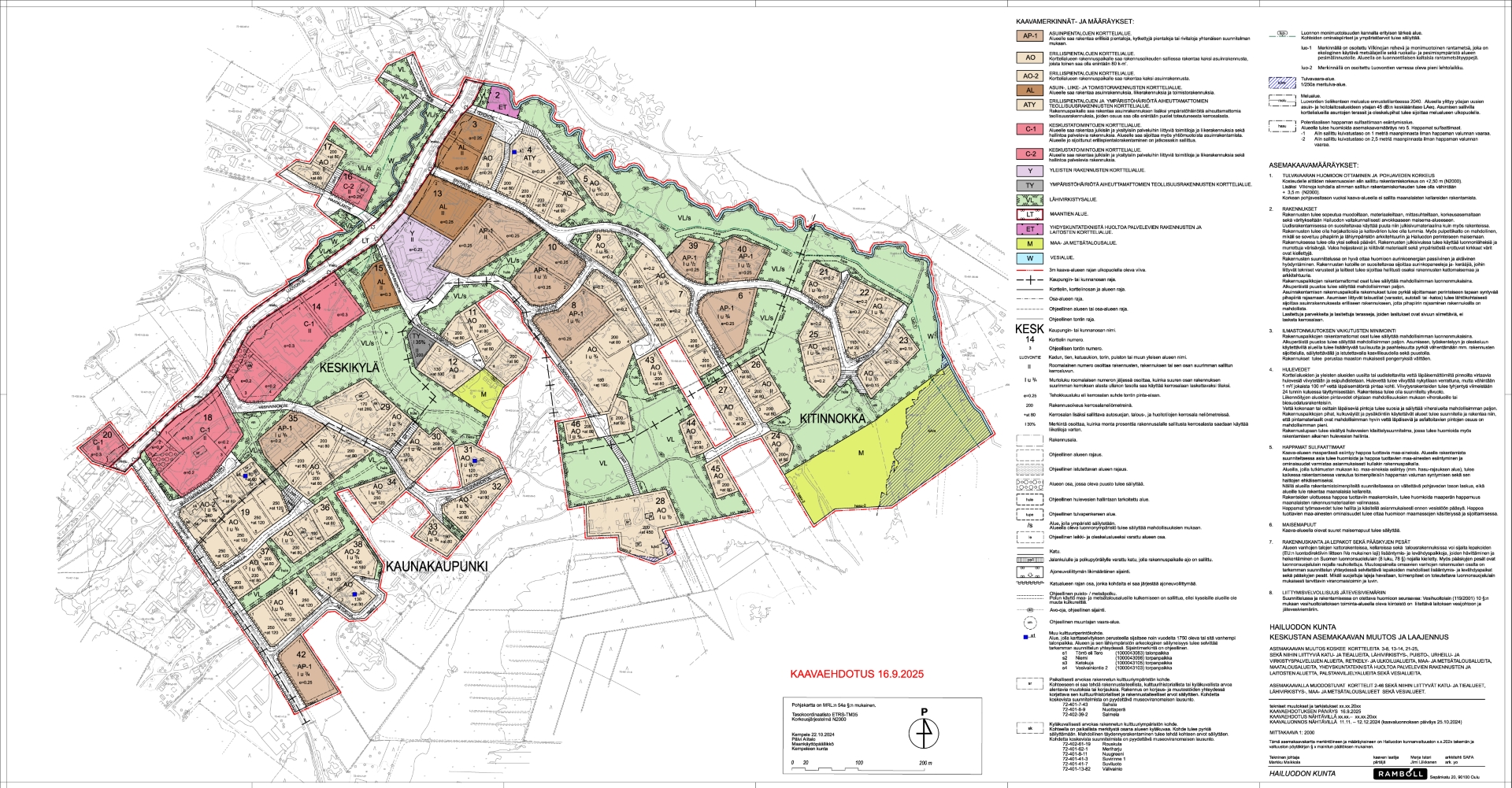
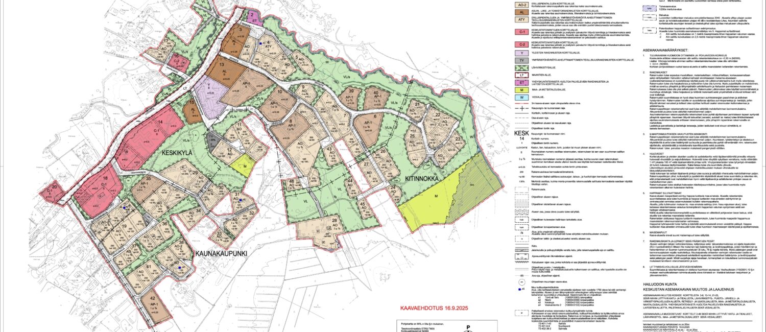
Hailuodon keskustaa koskeva asemakaava (Keskustan asemakaavan muutos ja laajennus) on liiteaineistoineen nähtävillä 9.10.-10.11.2025 välisen ajan osoitteessa https://hailuoto.fi/rakentaminen/keskeneraiset-kaavahankkeet/ sekä myös paperitulosteina Hailuodon kunnantalolla.
Kunnan jäsenillä ja osallisilla on oikeus jättää kirjallinen muistutus nähtävillä olevasta aineistosta. Kirjalliset muistutukset on toimitettava viimeistään 10.11.2025 klo 16:00 mennessä sähköpostiin kunnanvirasto@hailuoto.fi tai osoitteeseen Hailuodon kunta, Luovontie 176, 90480 Hailuoto. Palautteen aiheeksi tulee merkitä ”Keskustan asemakaava”. Huomioithan, että antamasi palaute on julkista.
Asemakaavaehdotusta esitellään kaikille avoimessa yleisötilaisuudessa Luotosalissa Hailuodon kunnantalolla keskiviikkona 22.10.2025 klo 18-19:30.
Hailuodon kunnanhallitus 23.9.2025


